Discover a variety of meticulously designed floor plans tailored to suit your lifestyle needs. Whether you're searching for a cozy duplex or a spacious single-family home, our collection offers a range of options to accommodate your preferences.
Nestled along the tranquil shores of Lake Wabamun in Alberta, Canada, Osprey Estates offers a premier residential development crafted by Romya Homes. Discover a community dedicated to curating an unparalleled lifestyle, blending quality craftsmanship, environmental responsibility, and community cohesion.

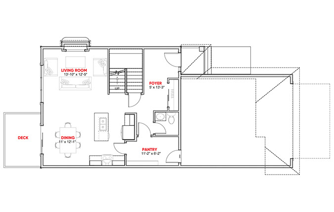
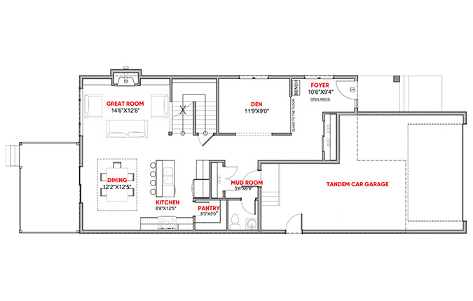
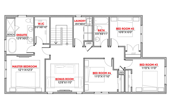
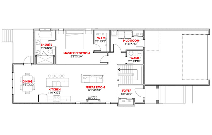
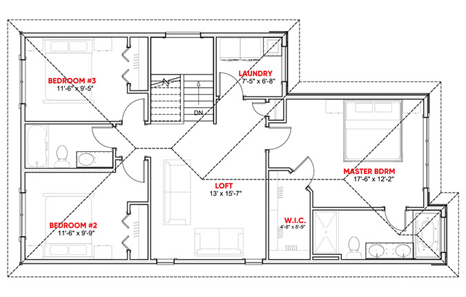
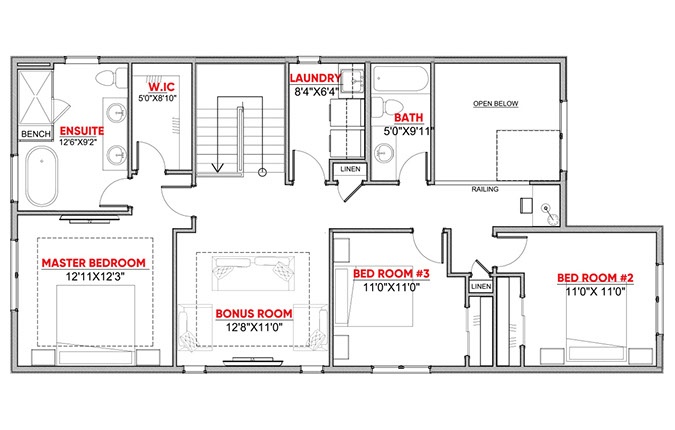
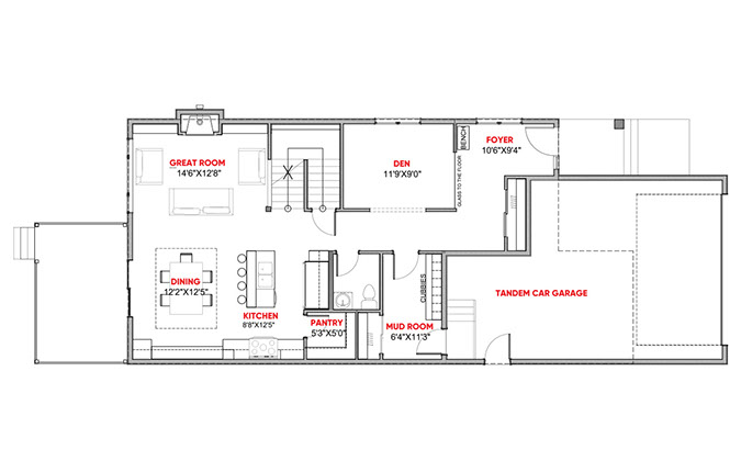
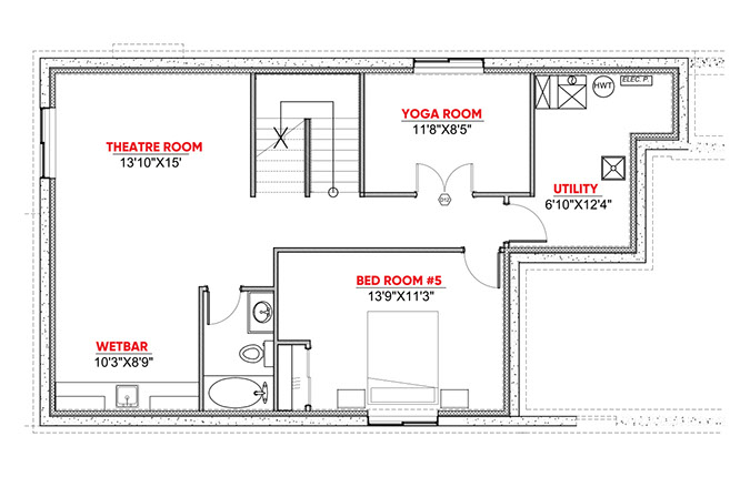
Discover the perfect floor plan to fit your lifestyle at Osprey Estates. From cozy duplexes to spacious single-family homes, our diverse collection of floor plans offers something for everyone. Explore our thoughtfully designed layouts and envision your dream home in our picturesque community.
Not quite finding the floor plan that fits your vision? No problem. At Romya Homes, we specialize in crafting custom homes tailored to your unique needs and desires. Whether you're seeking a specific layout, architectural style, or special features, our team of experts is here to bring your dream home to fruition. From concept to completion, we work closely with you to ensure every detail reflects your individual taste and lifestyle.
At Osprey by the Lake, we offer a range of spacious lot sizes to suit your lifestyle and preferences. Whether you envision a sprawling estate or a cozy retreat, our diverse selection ensures there's a perfect fit for every dream home.
$94,900
$109,999
Experience the best of lakeside living at Osprey by the Lake. Whether you're seeking a peaceful retreat, a place to reconnect with nature, or a vibrant community to call home, our development offers the perfect blend of luxury, comfort, and natural beauty. Contact us today to learn more about available homes and make your dream of lakeside living a reality.
Have questions or ready to take the next step towards owning your dream home at Osprey by the Lake?
Experience the best of lakeside living at Osprey by the Lake. Whether you're seeking a peaceful retreat, a place to reconnect with nature, or a vibrant community to call home, our development offers the perfect blend of luxury, comfort, and natural beauty. Contact us today to learn more about available homes and make your dream of lakeside living a reality.